Omakotitalo, Alajärvi, keskusta, Hoiskontie 12
- 249.0 m2Asunnon pinta-ala
- 1973Käyttöönottovuosi
- 269 000 €Velaton myyntihinta
Myydään huippuhieno täysin peruskorjattu iso maalämpökoti keskellä kaupunkia.
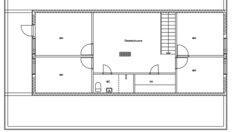
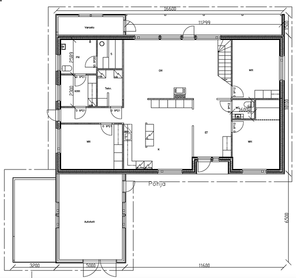
Hoiskontien varrella isolla tontilla sijaitsee iso 1,5 krs omakotitalo sekä autotalli. Talossa on yhteensä seitsemän makuuhuonetta, iso olohuone ja erillinen keittiö sekä säilytys- ja varastotilaa runsaasti. Alakerrassa on kolme erillistä makuuhuonetta ja yläkerrassa on toisessa päässä kaksi erillistä makkaria ja toisessa päässä yksi iso huona, joka on jaettu väliseinällä kahdeksi huoneeksi. Lämmitysmuotona edullinen ja ekologinen maalämpö, lämmönjakona vesikiertoinen lattialämmitys. Lisäksi olohuoneessa on varaava takka. Asumismukavuutta lisää koneellinen ilmanvaihto lämmön talteenotolla.
Juuri valmistuneessa ammattilaisten tekemässä (Rakennusliike Pitkäkangas Oy) laajassa peruskorjauksessa talo on käyty täysin läpi. Alapohja on uusittu ja valettu uusi lattia (vesikiertoinen lattialämmitys) sekä kaikki ulkoseinät avattu. Ulkopuolelta uusittu kaikki ovet sekä ulkoverhous, salaojat, sadevesijärjestelmä sekä kaikki piha-alueet. Taloon on tehty vesikattoremontti 2010 sekä ikkunat uusittu 90-luvulla. Iso avara keittiö, jossa todella hyvä varustetaso, mm. alaspäin imevä liesitaso jne.
Suojaisa piha, iso tontti ja kävelymatka keskustan palveluihin on mukava yhdistelmä. Kaikki koulut ovat myös muutaman minuutin pyörä- tai kävelymatkan säteellä. Perhekoon taloja on harvoin tarjolla näin keskeisellä paikalla.
HUOM! Lämmityskulut talon suuresta koosta huolimatta todella edulliset, maalämpöpumpun keskikulutus talven aikana on ollut vain 70-95 kwh/vko eli lämmitykseen kuluu taskurahoja.
Kiinnostuitko? Käydään tutustumassa tähän kotiin. Tämä talo on mahdollista myös vuokrata.
050 565 1810
Antti Nenonen, LKV
Perustiedot
| Kohdenumero: | 20573489 |
| Sijainti: |
|
| Tyyppi: | Omakotitalo |
| Omistusmuoto: | Omistusasunto |
| Huoneistoselitelmä: | 7h + oh + k + ph + s + yläk.aula + tekn.tila |
| Huoneita: | Ei luokiteltu |
| Asuinpinta-ala: | 249 m2 |
| Lisätietoja pinta-alasta: |
|
| Kerrokset: | 2 |
| Rakennusvuosi: | 1973 |
Maksut
| Myyntihinta: | 269 000 € |
| Neliöhinta: | 1 080,32 € / m2 |
| Kiinteistövero: | 409,76 € / vuosi |
| Lisätietoja maksuista: |
|
Tilat ja materiaalit
| Rakennus- ja pintamateriaalit: |
|
| Katto: |
|
| Keittiön kuvaus: |
|
| Kylpyhuoneen kuvaus: |
|
| WC-tilojen kuvaus: |
|
| Saunan kuvaus: |
|
| Kodinhoitohuoneen kuvaus: |
|
| Olohuoneen kuvaus: |
|
| Makuuhuoneiden kuvaus: |
|
| Tilojen kuvaus: | Tekninen tila keskellä taloa, jossa on maalämpöpumppu, ilmanvaihtokone sekä muu talotekniikka |
Pohjakuva
Lisätiedot
| Sauna: |
|
| Kohteeseen kuuluu: | Tie perille , kuntotarkastusta ei ole tehty, kosteusmittausta ei ole tehty |
| Yleiskunto: | Hyvä |
| Lisätietoja kunnosta: |
|
| Tehdyt remontit: | Vesikatto uusittu 2010 Ikkunat uusittu 90-luvulla laaja peruskorjaus 2023-24 |
| Energialuokka: | A2018 |
| Lämmitysjärjestelmän kuvaus: | Uusi |
| Lämmitysjärjestelmän kuvaus: | Maalämpö |
| Vesihuollon kuvaus: | Kunnan |
| Viemäri: | Kunnan |
| Sähköliittymä siirtyy: | Kyllä |
Tontti
| Tontin omistus: | Oma |
| Kiinteistötunnus: | 5-401-5-475 |
| Tontin tyyppi: | Tasamaatontti |
| Lisätietoja tontista: | Tontin tehokas ala on noin 1850 m2, loput alasta peittyy Hoiskontien alle |
| Tontin koko: | 2 240 m2 |
| Tehokkuusluku: | 0.25 |
| Rakennusoikeus: | 450 m2 |
| Lisätietoja rakennusoikeudesta: | Alajärven kaupunki rakennusvalvonta |
| Kaavoitustiedot: | AO-alue eli pientalojen asuinalue, toinen puoli rajoittuu puistoalueeseen |
| Rakennukset: | Talon etupihalla kytkettynä autotalli/varasto |
Muut tiedot
| Ranta: | Ei rantaa |
| Rantaviivaa: | 0 m |
