Erillistalo, Kouvola, Kuusankoski keskusta, Mäenpääntie 5
- 238.0 m2Asunnon pinta-ala
- 1973Käyttöönottovuosi
- 164 000 €Velaton myyntihinta
Kuusankosken keskustassa persoonallinen 2-kerroksinen erillistalo rivitaloyhtiössä, jossa yhteensä 10 huoneistoa.
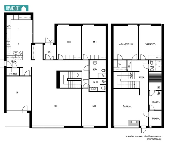
Sisääntulokerroksessa iso, valoisa olohuone, neljä makuuhuonetta, keittiö, kodinhoitotila ja kaksi kylpyhuonetta sekä lasitettu terassi. Kellarikerroksessa takkatila, vaateh. saunaosasto, wc, arkarteluhuone ja varastohuone, joita käytetty makuuhuoneina. Asuntoon kuuluu autotalli ja varastotilaa.
Tämä koti soveltuu isammallekin perheelle, mutta myös esim. ammatilliseen perhekoti toimintaan (nykyisillä omistajilla luvat 4-paikkaiselle ammatilliselle perhekodille).
Perustiedot
| Kohdenumero: | 21744437 |
| Sijainti: |
|
| Tyyppi: | Erillistalo |
| Omistusmuoto: | Omistusasunto |
| Huoneistoselitelmä: | 6h,k,3 kph, vh, sauna, askarteluh. varasto |
| Huoneita: | 6 h ja enemmän |
| Asuinpinta-ala: | 238 m2 |
| Kerrokset: | 2 |
| Rakennusvuosi: | 1973 |
Maksut
| Velaton hinta: |
|
| Myyntihinta: | 143 917 € |
| Velkaosuus: | 20 083 € |
| Neliöhinta: | 689,08 € / m2 |
| Vastike: |
|
| Lisätietoja maksuista: |
|
Tilat ja materiaalit
| Rakennus- ja pintamateriaalit: |
|
| Katto: |
|
| Keittiön kuvaus: |
|
| Kylpyhuoneen kuvaus: |
|
| WC-tilojen kuvaus: |
|
| Saunan kuvaus: |
|
| Kodinhoitohuoneen kuvaus: |
|
| Olohuoneen kuvaus: |
|
| Makuuhuoneiden kuvaus: |
|
| Tilojen kuvaus: | Alakerran työhuoneessa laminaatti lattia ja askarteluhuoneessa kokolattiamatto, seinäpinnat maali/tapetti Askarteluhuoneen ja alakerran vaatehuoneen lattiat on kapseloitu. |
Lisätiedot
| Sauna: |
|
| Kohteeseen kuuluu: | Kaapeli-tv, kuntotarkastus tehty |
| Yleiskunto: | Hyvä |
| Lämmitysjärjestelmän kuvaus: | Sähkölämmitys, ilmalämpöpumppu, muu |
Palvelut ja kulkuyhteydet
| Palvelut: | Kuusankosken keskustan palvelut n. 500 m |
Muut tiedot
| Rantaviivaa: | 0 m |
Taloyhtiö
| Taloyhtiön nimi: | Asunto-osakeyhtiö Luolarinne |
| Isännöitsijä: | Tilitoimisto Hermunen Ky/ Pekka Floman 040 196 4336, Keskusaukio 1, 45700 Kuusankoski |
| Huolto: | Konelumityöt hoitaa huoltoyhtiö |
| Taloyhtiön autopaikat: |
|
| Tontin koko: | 4 435 m2 |
| Tontin omistus: | Oma |
| Tehdyt remontit: | Yhden uuden kylpyhuoneen rakentaminen |
| Tehdyt remontit: | Ilmanvaihtokanavien puhdistus huolto ja säätö, korvausilmaventtiilien suodattimien vaihto, huoneistojen märkätilojen hankesuunnitelma, viemäreiden sukitus 2025, huoneiston 5 G vesivahingon korjaus, valokuidun asennus, huon. K lämminvesivaraajan vaihto, palovaroittimet 2024, radon mittaukset, as D takkaimurin uusinta, sähöautojen asennettavuuskartoitus, as I viemärin sukitus, as K lämpimän veden varoventtiilin uusinta 2023, radon imureiden asennus 2022, julkisivun tiiliseinien putsaus sammaleesta , radon mittaukset 2021, pihaportaiden uusiminen 2019, käyttövesiputkien saneeraus 2018, sähköpattereiden uusiminen, viemärin talohaaran uusiminen 2011, ulkovalojen tolppien muutos 2009, Ikkunoiden uusiminen, vesikatteen uusiminen kaikki muut paitsi as. H, julkisivujen korjaukset ja autotallien ovien uusiminen 2007, As. A-H terassiovien uusiminen 2006, as. H vesikatteen uusiminen 2004, asuntojen ulko-ovien uusiminen 2003 |
| Tulevat remontit: | Arvio tulevista kunnossapitotöistä 2026-2030: Varasto-ovien kunnostus, huoneistojen kylpyhuone ja WC-tilojen hanke 2026, autotallien lattioiden kuntotarkastus, kulkureittien kunnostus, vesien ohjaus 2027, autotallien edustojen asfaltointi 2028 |
| Energialuokka: | E2018 |
Sijainti
