Omakotitalo, Ähtäri, Keskusta, Kytökuja 4
- 125.0 m2Asunnon pinta-ala
- 1990Käyttöönottovuosi
- 85 000 €Velaton myyntihinta
Kytökujan rauhallisella alueella sijaitsee tämä huolella pidetty ja muuttovalmis omakotitalo!
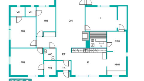
Kodin sydän on valoisa olohuone, jossa tunnelmaa luo vuolukivitakka. Olohuoneesta on käynti vuonna 2010 valmistuneelle tilavalle terassille, täydellinen paikka nauttia kesäpäivistä ja vehreistä maisemista. Koti tarjoaa neljä makuuhuonetta, joten tilaa riittää isommallekin perheelle. Päämakuuhuoneesta on kulku erilliseen huoneeseen, joka soveltuu erinomaisesti työtilaksi, pukeutumishuoneeksi tai vaikkapa vauvanhuoneeksi. Vuonna 2018 on toteutettu kattava remontti, jossa pesuhuone, sauna ja kodinhoitohuone uudistettiin laadukkaasti ja nykyaikaisilla materiaaleilla. Kodinhoitohuoneesta on myös kätevä kulku suoraan ulos. Keittiö on uusittu vuonna 2005 ja tarjoaa runsaasti säilytys- sekä työskentelytilaa.
Talon ympärillä avautuu ihana ja suuri, 3 502 m² tontti, joka on viimeistelty kauniilla ja runsain istutuksin. Piha tarjoaa reilusti tilaa niin lasten leikeille kuin puutarhaharrastuksillekin.
Tämä koti yhdistää tilan, viihtyisyyden ja käytännöllisyyden, kaiken kruunaa erinomainen sijainti lähellä keskustan palveluita.
Kysy lisää:
Jere Rajalampi / 050 462 5050
Omakodit Ähtäri
Ostolantie 12, 63700 Ähtäri








































































Perustiedot
Kohdenumero: | 9481159 |
Sijainti: |
|
Tyyppi: | Omakotitalo |
Huoneistoselitelmä: | 5h + k + psh + s + wc |
Huoneita: | 5 h |
Asuinpinta-ala: | 125 m2 |
Kerrokset: | 1 |
Rakennusvuosi: | 1990 |
Vapautuminen: | Sopimuksen mukaan |
Maksut
Myyntihinta: | 85 000 € |
Neliöhinta: | 680 € / m2 |
Lisätietoja maksuista: |
|
Tilat ja materiaalit
Rakennus- ja pintamateriaalit: |
|
Katto: |
|
Keittiön kuvaus: |
|
Kylpyhuoneen kuvaus: |
|
WC-tilojen kuvaus: |
|
Saunan kuvaus: |
|
Kodinhoitohuoneen kuvaus: |
|
Olohuoneen kuvaus: |
|
Makuuhuoneiden kuvaus: |
|
Pohjakuva
Lisätiedot
Sauna: |
|
Kohteeseen kuuluu: | Tie perille, kaapeli-tv , , kuntotarkastusta ei ole tehty, kosteusmittausta ei ole tehty |
Yleiskunto: | Tyydyttävä |
Tehdyt remontit: | 2005 keittiöremontti, 2006 vuolukivitakka asennettu olohuoneeseen, 2010 terassi rakennettu, 2018 kodinhoitohuone, pesuhuone ja sauna remontoitu. |
Energiatodistus: | Ei energiatodistusta |
Lämmitysjärjestelmän kuvaus: | Sähkölämmitys |
Vesihuollon kuvaus: | Kunnan |
Viemäri: | Kunnan |
Sähköliittymä siirtyy: | Kyllä |
Tontti
Tontin omistus: | Oma |
Kiinteistötunnus: | 989-406-47-85 ja 989-406-63-13 ja 989-406-47-86 |
Tontin tyyppi: | Tasamaatontti |
Tontin koko: | 3 502 m2 |