Omakotitalo, Alajärvi, Koskenvarsi, Koskenvarrentie 324
- 162.8 m2Asunnon pinta-ala
- 2010Käyttöönottovuosi
- 229 000 €Velaton myyntihinta
Upea kokonaisuus luonnonrauhassa ja vain 5 min ajomatkan päässä keskustasta!
Tervetuloa tutustumaan tähän näyttävään ja laadukkaaseen hirsirakenteiseen omakotitaloon Alajärven Koskenvarrella. Tämä kohde tarjoaa täydellisen yhdistelmän luonnonläheisyyttä, tilaa ja modernia asumismukavuutta. Tämä koti sijaitsee omalla noin 3 hehtaarin tilalla, jossa kaunis männikkö ja laajat nurmialueet luovat rauhallisen ja viihtyisän asuinympäristön. Asuinrakennus on rakennettu 2010 ja toteutettu Finnlamellin hirrestä, mikä tuo asumiseen lämpöä, tunnelmaa ja kestävyyttä. Tilaratkaisut on suunniteltu huolella viihtyisyyttä ja käytännöllisyyttä silmällä pitäen. Varustelutaso on erinomainen ja vastaa vaativankin asukkaan toiveisiin. Talossa on sähköinen lattialämmitys ja iso vuolukivinen takka/leivinuuni keskellä taloa. Lisäksi hiljattain asennettu laadukas ilmalämpöpumppu tuovat energiansäästöä ja mukavuutta kesähelteille.
Pihapiiri on melko laaja kokonaisuus. Takapihalla on tyylikäs hirsinen pihasauna, lisäksi on iso puulato. Autotallissa reilusti tilaa tee se itse -väelle sekä kahden auton katos on niin korkea, että siihen sopii asuntovaunu/-auto myös hyvin.
Tähän kotiin kannattaa tutustua tarkemmin!
050 565 1810
antti.nenonen@omakodit.fi
Perustiedot
| Kohdenumero: | 21899831 |
| Sijainti: |
|
| Tyyppi: | Omakotitalo |
| Huoneistoselitelmä: | 4h + tupak + khh + ph + s |
| Huoneita: | Ei luokiteltu |
| Asuinpinta-ala: | 162,80 m2 |
| Lisätietoja pinta-alasta: |
|
| Kerrokset: | 1 |
| Rakennusvuosi: | 2010 |
| Vapautuminen: | Noin 2 kk kaupasta |
Maksut
| Myyntihinta: | 229 000 € |
| Neliöhinta: | 1 406,63 € / m2 |
| Kiinteistövero: | 695 € / vuosi |
| Lisätietoja maksuista: |
|
Tilat ja materiaalit
| Rakennus- ja pintamateriaalit: |
|
| Katto: |
|
| Keittiön kuvaus: |
|
| Kylpyhuoneen kuvaus: |
|
| WC-tilojen kuvaus: |
|
| Saunan kuvaus: |
|
| Kodinhoitohuoneen kuvaus: |
|
| Olohuoneen kuvaus: |
|
| Makuuhuoneiden kuvaus: |
|
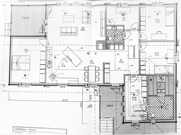
Pohjakuva
Lisätiedot
| Sauna: |
|
| Kohteeseen kuuluu: | Tie perille |
| Yleiskunto: | Hyvä |
| Energiatodistus: | Ei energiatodistusta |
| Lämmitysjärjestelmän kuvaus: | Ilmalämpöpumppu asennettu muutama vuosi sitten |
| Lämmitysjärjestelmän kuvaus: | Sähkölämmitys, ilmalämpöpumppu |
| Vesihuollon kuvaus: | Vesiosuuskunta |
| Viemäri: | Pienpuhdistamo |
| Sähköliittymä siirtyy: | Kyllä |
Tontti
| Tontin omistus: | Oma |
| Kiinteistötunnus: | 5-402-15-95 |
| Tontin koko: | 30 830,00 m2 |
| Rakennukset: | Mahtava hirsirakenteinen saunamökki, jossa pukutila ja iso löylyhuone sekä terassi, johon kytkettynä kylpypalju. |
Muut tiedot
| Ranta: | Ei rantaa |
| Rantaviivaa: | 0 m |
