Omakotitalo, Kouvola, Kuusankoski (Tähtee), Pekolantie 8
- 99.0 m2Asunnon pinta-ala
- 1952Käyttöönottovuosi
- 99 000 €Velaton myyntihinta
Kuusankosken Tähteessä siistikuntoinen ja valoisa 1,5-kerroksinen omakotitalo omalla 1249 m2 tontilla.
Mainio koti vaikkapa lapsiperheelle ja talo tarjoaakin toimivat tilat kolmessa kerroksessa.
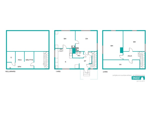
Talon yläkerrassa on 2 tilavaa makuuhuonetta ja isohko vaatehuone. Asuinkerroksessa on keittiö ja 2 huonetta, joista toinen muuntautuu helposti makuuhuoneeksi tai ruokahuoneeksi. Kellarikerroksessa saunaosasto ja pyykinpesu paikka. Asuinkerroksessa 2 tulisijaa; vuolukivitakka ja pönttöuuni. Tulisijoilla luot tunnelmaa ja luot miellyttävää lämpöä talven pakkasiin.
Lasitettu ja katettu terassi sisäänkäynnin edustalla on upea kesähuone, jossa kiva viettää aikaa.
Erillinen piharakennus jossa perinteinen pihasauna, kesähuone ja varastotilaa.
Esittely sopimuksen mukaan, ota yhteyttä ja mennään tutustumaan tähän kodikkaaseen kotiin!
Perustiedot
| Kohdenumero: | 20115143 |
| Sijainti: |
|
| Tyyppi: | Omakotitalo |
| Huoneistoselitelmä: | 4h + k + s |
| Huoneita: | 4 h |
| Asuinpinta-ala: | 99 m2 |
| Lisätietoja pinta-alasta: |
|
| Kerrokset: | 2 |
| Rakennusvuosi: | 1952 |
| Vapautuminen: | Sopimuksen mukaan |
Maksut
| Myyntihinta: | 99 000 € |
| Neliöhinta: | 1 000 € / m2 |
| Kiinteistövero: | 300 € / vuosi |
| Lisätietoja maksuista: |
|
Tilat ja materiaalit
| Rakennus- ja pintamateriaalit: |
|
| Katto: |
|
| Keittiön kuvaus: |
|
| Kylpyhuoneen kuvaus: |
|
| WC-tilojen kuvaus: |
|
| Saunan kuvaus: |
|
| Olohuoneen kuvaus: |
|
| Makuuhuoneiden kuvaus: |
|
Pohjakuva
Lisätiedot
| Sauna: |
|
| Kohteeseen kuuluu: | Tie perille , kosteusmittaus tehty |
| Yleiskunto: | Hyvä |
| Tehdyt remontit: | Keittiö remontoitu vuonna 2019. Wc-tila remontoitu vuonna 2002. Pesutila ja sauna (kellarikrs) on tehty vuonna 1997. Julkisivuverhous uusittu (lisäeristys, tuulensuojalevy, panelointi) ja uusittu peltikate sekä lasitettu terassi tehty 2000-luvun alkupuolella. |
| Energiatodistus: | Ei energiatodistusta |
| Lämmitysjärjestelmän kuvaus: | Puu, Sähkölämmitys |
| Vesihuollon kuvaus: | Kunnan |
| Viemäri: | Kunnan |
| Sähköliittymä siirtyy: | Kyllä |
Tontti
| Tontin omistus: | Oma |
| Kiinteistötunnus: | 286-21-314-31 |
| Tontin koko: | 1 249 m2 |
| Tehokkuusluku: | 0.15 |
| Kaavoitustiedot: | Kouvolan kaupunki / kaavoitus p.02061511 |
| Rakennukset: | Talousrakennus, jossa sauna, kesähuone ja varasto |
Muut tiedot
| Rantaviivaa: | 0 m |
