Omakotitalo, Kouvola, Kuusankoski, Hilleritie 18
- 139.0 m2Asunnon pinta-ala
- 1974Käyttöönottovuosi
- 129 000 €Velaton myyntihinta
Niskalassa siistikuntoinen ja tilava 2-kerroksinen omakotitalo, omalla 788 m2 kulmatontilla.
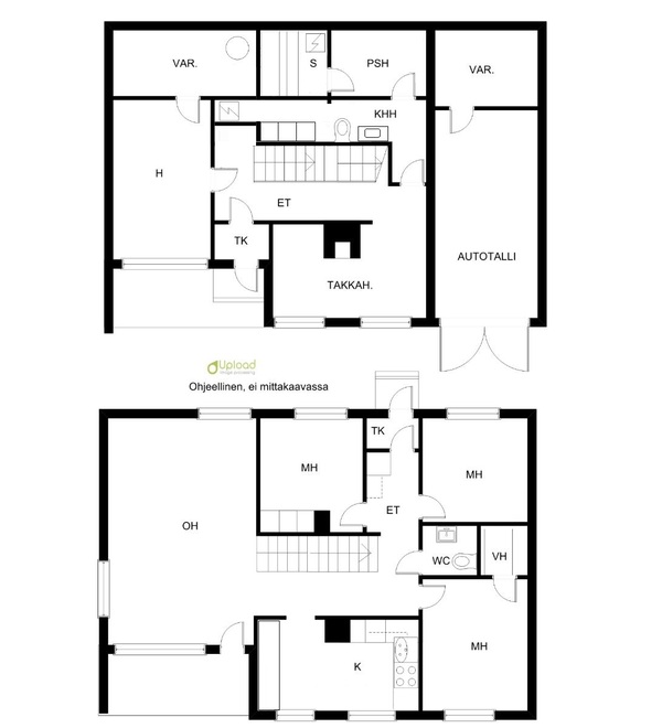
Yläkerran asuintiloina 3 makuuhuonetta, keittiö ja iso olohuone. Olohuoneesta käynti lasitetulle parvekkeelle.
Alakerrassa askarteluhuone (toimii helposti myös makuuhuoneena), takkahuone ja saunaosasto sekä kodinhoitotila. Molemmissa kerroksissa wc:t. Asuintiloihin tehty pintaremonttia viime vuosina, talon ulko-ovet uusittu, käyttövesiputket uusittu ja olohuoneeseen asennettu uusi ilmalämpöpumppu, valokuitu.
Molemmissa kerroksissa sisäänkäyntiovet, lämmin autotalli sähköisellä nosto-ovella, alapihalla kiveykset. Tästä kiva talo ja paikka vaikkapa lapsiperheelle, sovi esittely ja mennään tutustumaan paikan päälle.
Perustiedot
| Kohdenumero: | 20942687 |
| Sijainti: |
|
| Tyyppi: | Omakotitalo |
| Omistusmuoto: | Omistusasunto |
| Huoneistoselitelmä: | 3mh,oh,tkh,k,psh,s,khh,askart.h.,autotalli |
| Huoneita: | 6 h ja enemmän |
| Asuinpinta-ala: | 139 m2 |
| Lisätietoja pinta-alasta: |
|
| Kerrokset: | 2 |
| Rakennusvuosi: | 1974 |
| Vapautuminen: | Sopimuksen mukaan |
Maksut
| Myyntihinta: | 129 000 € |
| Neliöhinta: | 928,06 € / m2 |
| Kiinteistövero: | 304 € / vuosi |
| Lisätietoja maksuista: |
|
Tilat ja materiaalit
| Rakennus- ja pintamateriaalit: |
|
| Katto: |
|
| Keittiön kuvaus: |
|
| Kylpyhuoneen kuvaus: |
|
| WC-tilojen kuvaus: |
|
| Saunan kuvaus: |
|
| Kodinhoitohuoneen kuvaus: |
|
| Olohuoneen kuvaus: |
|
| Makuuhuoneiden kuvaus: |
|
| Tilojen kuvaus: | Takkahuoneen lattia: muovi. Askarteluhuone lattia: laminaatti. |
Pohjakuva
Lisätiedot
| Sauna: |
|
| Kohteeseen kuuluu: | Tie perille |
| Yleiskunto: | Hyvä |
| Tehdyt remontit: | Ilmalämpöpumppu uusittu 2024, raja-aita uusittu naapurin kanssa 2024, käyttövesiputket uusittu 2019, alakerrasta purettu kylmiö josta laajennettu kodinhoitotilaa 2019, parvekkeen ovi vaihdettu 2021, yläkerran ulko-ovi vaihdettu 2019, alakerran ulko-ovi 2017, pintaremonttia sisätiloissa tehty 2017-2024. Aiempien omistajien aikana: Kuntotarkastus tehty v.2012, tasakatto on muutettu harjakatoksi 1980-luvulla. Lämminvesivaraaja on uusittu n. vuonna 1995. Pesuhuoneen lattia on laatoitettu ja sauna on paneloitu n. 2000-luvun alussa. Avotakkaan on asennettu terässydän. |
| Energiatodistus: | Ei energiatodistusta |
| Lämmitysjärjestelmän kuvaus: | Sähkölämmitys, ilmalämpöpumppu |
| Vesihuollon kuvaus: | Kunnan |
| Viemäri: | Kunnan |
| Sähköliittymä siirtyy: | Kyllä |
Tontti
| Tontin omistus: | Oma |
| Kiinteistötunnus: | 286-23-121-1 |
| Tontin tyyppi: | Rinnetontti |
| Tontin koko: | 788 m2 |
| Tehokkuusluku: | 0.25 |
| Kaavoitustiedot: | Kouvolan kaupunki / kaavoitus p.02061511 |
Muut tiedot
| Rantaviivaa: | 0 m |
Sijainti
