Omakotitalo, Seinäjoki, Soukkajoki, Otvakatu 18
- 106.5 m2Asunnon pinta-ala
- 1988Käyttöönottovuosi
- 189 000 €Velaton myyntihinta
Viihtyisä sekä kodikas omakotitalo suojaisalla, puistoon rajoittuvalla tontilla Soukanjoen asuinalueella!
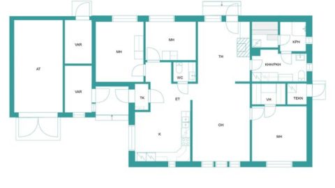
Vuonna 1988 valmistunut talo tarjoaa 106,5 m² käytännöllistä asuintilaa, johon kuuluu kolme makuuhuonetta, tilava olohuone, keittiö, kodinhoitohuone, pesutilat, sauna sekä kaksi wc:tä. Asuintiloihin on vuosien saatossa tehty pintaremonttia, mm. keittiö on uusittu 2015 vuonna. Valokuitu on myös asennettu muutama vuosi sitten!
Talon yhteydessä on autotalli sekä hyvät varastotilat.
Talo lämpenee kaukolämmöllä, lämmitystä tukee lisäksi varaava takka.
Pihapiiri rajoittuu puistoalueeseen ja takapihalta pääsetkin aivan tuota pikaa virtaavan veden äärelle, sillä Friskinlammi virtaa ihan kivenheiton päässä.
Tule ihastumaan paikan päälle!
Sauli Kemppainen LKV, Kaupanvahvistaja
0400 518 804
Omakodit Seinäjoki
Perustiedot
| Kohdenumero: | 21813572 |
| Sijainti: |
|
| Tyyppi: | Omakotitalo |
| Huoneistoselitelmä: | 3mh + oh + k + tkh + khh + ph + s + wc + vh |
| Huoneita: | 5 h |
| Asuinpinta-ala: | 106,5 m2 |
| Lisätietoja pinta-alasta: |
|
| Kerrokset: | 1 |
| Rakennusvuosi: | 1988 |
| Vapautuminen: | Sopimuksen mukaan |
Maksut
| Myyntihinta: | 189 000 € |
| Neliöhinta: | 1 774,65 € / m2 |
| Kiinteistövero: | 454 € / vuosi |
| Lisätietoja maksuista: |
|
Tilat ja materiaalit
| Rakennus- ja pintamateriaalit: |
|
| Katto: |
|
| Keittiön kuvaus: |
|
| Kylpyhuoneen kuvaus: |
|
| WC-tilojen kuvaus: |
|
| Saunan kuvaus: |
|
| Olohuoneen kuvaus: |
|
| Makuuhuoneiden kuvaus: |
|
Pohjakuva
Lisätiedot
| Sauna: |
|
| Kohteeseen kuuluu: | Tie perille, kuntotarkastus tehty , antenni, kosteusmittaus tehty |
| Yleiskunto: | Hyvä |
| Lisätietoja kunnosta: |
|
| Tehdyt remontit: | Keittiö remontoitu 2015 Kodinhoitohuone ja sauna 2015 Vesikate uusittu osittain. Sisäpintoja mm. seinäpintoja, lattiapintoja 2019-2025. |
| Energialuokka: | C2018 |
| Lämmitysjärjestelmän kuvaus: | Kaukolämpö |
| Vesihuollon kuvaus: | Kunnan |
| Viemäri: | Kunnan |
| Sähköliittymä siirtyy: | Kyllä |
Tontti
| Tontin omistus: | Oma |
| Kiinteistötunnus: | 743-18-8-3 |
| Tontin tyyppi: | Tasamaatontti |
| Tontin koko: | 950 m2 |
| Tehokkuusluku: | 0.23 |
| Rakennusoikeus: | 218,5 m2 |
| Kaavoitustiedot: | Seinäjoen kaupunki / Kaavoitus p. 06 416 2111 |
Muut tiedot
| Rantaviivaa: | 0 m |
