Omakotitalo, Kouvola, Hörkäs, Hörkkääntie 123
- 110.0 m2Asunnon pinta-ala
- 2006Käyttöönottovuosi
- 119 000 €Velaton myyntihinta
Maaseuden rauhassa Hörkkään kylässä hirsinen omakotitalo ja talousrakennukset, omalla 4670 m2 tontilla.
Talo valmistunut vuonna 2006, asuintiloina alakerrassa 2 makuuhuonetta, olohuone ja keittiö sekä saunaosasto. Yläkerra parvi joka toimii helposti nukkumatilana tai vaikka oleskelu- ja työtilana. Olohuone on harjaan asti ulottuva ja tekee tilasta todella avaran. Talon edessä iso katettu terassi ja palju.
Erillinen pihasauna, varastotiloja, autokatos, jonka yhteydessä aitta ja varasto.
Esittely vain sopimuksen mukaan, ota yhteyttä.
Vesihuolto-osuuskunnan liittymät ja lisäksi oma kaivo josta kasteluvedet pihalle.










































































Perustiedot
Kohdenumero: | 20798158 |
Sijainti: |
|
Tyyppi: | Omakotitalo |
Huoneistoselitelmä: | 3h,k,psh,s,wc,parvi,autokatos/aitta,pihasauna |
Huoneita: | Ei luokiteltu |
Asuinpinta-ala: | 110 m2 |
Kerrokset: | 2 |
Rakennusvuosi: | 2006 |
Vapautuminen: | Sopimuksen mukaan |
Maksut
Myyntihinta: | 119 000 € |
Neliöhinta: | 1 081,82 € / m2 |
Lisätietoja maksuista: |
|
Tilat ja materiaalit
Rakennus- ja pintamateriaalit: |
|
Katto: |
|
Keittiön kuvaus: |
|
Kylpyhuoneen kuvaus: |
|
WC-tilojen kuvaus: |
|
Kodinhoitohuoneen kuvaus: |
|
Olohuoneen kuvaus: |
|
Makuuhuoneiden kuvaus: |
|
Tilojen kuvaus: | Parvi avointa tilaa, puulattia |
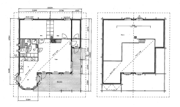
Pohjakuva
Lisätiedot
Sauna: |
|
Kohteeseen kuuluu: | Tie perille , kuntotarkastusta ei ole tehty |
Yleiskunto: | Hyvä |
Tehdyt remontit: | Peltikate asennettu noin vuonna 2020 (alla huopakate), aurinkopaneelit asennettu noin vuonna 2021 |
Energiatodistus: | Ei energiatodistusta |
Lämmitysjärjestelmän kuvaus: | Poistoilmalämpöpumppu |
Vesihuollon kuvaus: | Vesiosuuskunta |
Viemäri: | Vesiosuuskunnan osakas |
Sähköliittymä siirtyy: | Kyllä |
Tontti
Tontin omistus: | Oma |
Kiinteistötunnus: | 286-432-7-20 |
Tontin tyyppi: | Rinnetontti |
Tontin koko: | 4 670 m2 |
Rakennukset: | Autokatos/aitta 18/54m2 rv.2006-2008, pihasauna, varasto ja liiteritilaa |
Muut tiedot
Ranta: | Oikeus vesialueisiin |
Sijainti