Mökki tai huvila, Ähtäri, Peränne, Lampimäentie 409 B
- 38.5 m2Asunnon pinta-ala
- 1993Käyttöönottovuosi
- 59 000 €Velaton myyntihinta
Hirsirakenteinen 1992 rakennettu vapaa-ajan mökki Iso Niemolammen rannalla jossa voit viettää aikaa ympäri vuoden.
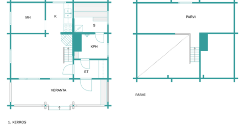
Mökissä on tupa, keittosyvennys, makuuhuone ja nukkumaparvi sekä pukuhuone ja puulämmitteinen sauna.
Lämmitys sähköpatterein ja tuvassa takka, oma kaivo ja harmaille vesille maahansuodatus.
Mökin katetulta terassilta kaunis näkymä lammen rantaan, ranta lapsiystävällinen keskellä lampea syvyyttä jopa 10 metriä.
Tontin leveys rannassa noin 47 metriä, järven ja tontin välissä vesijättöä jonka voit lunastaa halutessasi.
Tontilla myös puuliiteri, varasto ja puucee sekä useita marjapensaita.
Olisiko tässä teidän kesäpaikka?
Kaikki asialliset tarjoukset huomioidaan.
Lisätiedot ja esittely:
Harri Peerla
Omakodit Seinäjoki
0400 518 805
Perustiedot
| Kohdenumero: | 21066636 |
| Sijainti: |
|
| Tyyppi: | Mökki tai huvila |
| Huoneistoselitelmä: | 2h + kt + ph + s |
| Huoneita: | Ei luokiteltu |
| Asuinpinta-ala: | 38,5 m2 |
| Kerrokset: | 2 |
| Rakennusvuosi: | 1993 |
| Vapautuminen: | Sopimuksen mukaan |
Maksut
| Myyntihinta: | 59 000 € |
| Neliöhinta: | 1 532,47 € / m2 |
| Kiinteistövero: | 246 € / vuosi |
| Lisätietoja maksuista: |
|
Tilat ja materiaalit
| Rakennus- ja pintamateriaalit: |
|
| Katto: |
|
| Keittiön kuvaus: |
|
| Kylpyhuoneen kuvaus: |
|
| Saunan kuvaus: |
|
| Olohuoneen kuvaus: |
|
| Makuuhuoneiden kuvaus: |
|
Pohjakuva
Lisätiedot
| Sauna: |
|
| Kohteeseen kuuluu: | Tie perille, talviasuttava , rannan edessä vesijättöä, antenni, kuntotarkastusta ei ole tehty, tien käyttöön liittyvä oikeus, kosteusmittausta ei ole tehty |
| Yleiskunto: | Tyydyttävä |
| Lämmitysjärjestelmän kuvaus: | Puu, Sähkölämmitys |
| Vesihuollon kuvaus: | Kaivo |
| Viemäri: | Maasuodattamo |
| Sähköliittymä siirtyy: | Kyllä |
Tontti
| Tontin omistus: | Oma |
| Kiinteistötunnus: | 989-407-14-30 |
| Tontin tyyppi: | Rantatontti |
| Tontin koko: | 4 250 m2 |
Muut tiedot
| Ranta: | Oma ranta |
| Rantaviivaa: | 47 m |
| Vesistön nimi: | Iso Niemolampi |
