Kerrostalo, Seinäjoki, Uppa, Ylisentie 15
- 53.3 m2Asunnon pinta-ala
- 1966Käyttöönottovuosi
- 78 900 €Velaton myyntihinta
Seinäjoen keskustan tuntumassa myynnissä tilava ja siisti kuntoinen kerrostalokaksio.
Asunto Oy Ylisenhaka on omalla tontilla sijaitseva, 72:n asunnon taloyhtiö, jonka rakennukset lämpenevät kaukolämmöllä ja talojen raput on varustettu hisseillä.
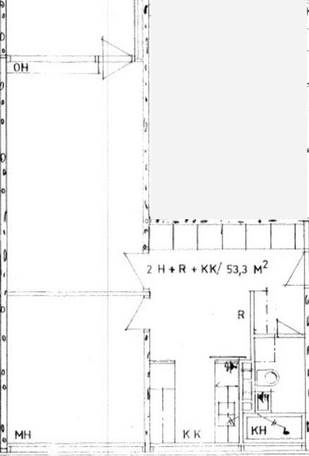
Tämä asunto on A-rapun kolmannessa kerroksessa ja huoneiston tiloja ovat olohuone, makuuhuone, keittiö ja pesuhuone. Lisäksi asunnolla oma lasitettu parveke.
Yhtiössä on tärkeimmät remontit toteutettuna.
Tämä koti vapautuu nopealla aikataululla.
Tervetuloa tutustumaan!
Sauli Kemppainen LKV, KED, Kaupanvahvistaja
0400 518 804
Omakodit Seinäjoki
Mikäli oman asunnon myynti on ajankohtainen, ota yhteyttä, sovitaan arviokäynti!
Perustiedot
| Kohdenumero: | 20209383 |
| Sijainti: |
|
| Tyyppi: | Kerrostalo |
| Omistusmuoto: | Omistusasunto |
| Huoneistoselitelmä: | 2h + kk + p |
| Huoneita: | Kaksio |
| Asuinpinta-ala: | 53,30 m2 |
| Pinta-alan peruste: | Yhtiöjärjestyksen mukainen |
| Kerros: | 3/3 |
| Rakennusvuosi: | 1966 |
| Vapautuminen: | Sopimuksen mukaan |
Maksut
| Velaton hinta: |
|
| Myyntihinta: | 67 749 € |
| Velkaosuus: | 11 151 € |
| Neliöhinta: | 1 480,30 € / m2 |
| Vastike: |
|
| Lisätietoja maksuista: |
|
Tilat ja materiaalit
| Rakennus- ja pintamateriaalit: |
|
| Katto: |
|
| Keittiön kuvaus: |
|
| Kylpyhuoneen kuvaus: |
|
| Olohuoneen kuvaus: |
|
| Makuuhuoneiden kuvaus: |
|
Pohjakuva
Lisätiedot
| Parveke: |
|
| Kohteeseen kuuluu: | Kaapeli-tv, kuntotarkastusta ei ole tehty, kosteusmittausta ei ole tehty |
| Yleiskunto: | Hyvä |
| Lämmitysjärjestelmän kuvaus: | Kaukolämpö |
Muut tiedot
| Rantaviivaa: | 0 m |
Taloyhtiö
| Taloyhtiön nimi: | Asunto Oy Ylisenhaka |
| Isännöitsijä: | Pohjanmaan Kiinteistöpalvelut Oy Kalevankatu 12, 60100 Seinäjoki Kristina Ristimäki 0451441413 |
| Huolto: | Aina Kiinteistöpalvelut |
| Taloyhtiöön kuuluu: | Sauna, kaapeli-tv, huoneistokohtaiset varastot |
| Taloyhtiön autopaikat: |
|
| Liikehuoneistoja: | 1 |
| Tontin koko: | 7 826 m2 |
| Tontin omistus: | Oma |
| Tehdyt remontit: | 2024 Kone Hissit Oy:ltä tilattu hissin varaosia 6 kpl TMSA ohjausyksikkö 2023 D-portaan hissin kannatusköysien uusiminen 2023 Kuntoarvio 2022 Huopakatteet uusittu 2020 Pyykinpesutilojen kunnostus 2020 Sisäänkäyntien ja A-talon edustan esteettömyysmuutokset 2020 Sähköiset ovipumput porraskäytävän oviin 2020 Zäpp -ovisummerijärjestelmä 2020 Lukituksen uusiminen Abloy Pulse 2019 Porraskäytävien ja pyörävarastojen maalaus 2018 Saunaosastojen uudistus 2017 IV-venttiilit uusittu, kanavat puhdistettu ja ilmamäärät säädetty 2015 Viemäriputkistojen pinnoitus, pohjaviemärien sukitus 2014 Poistoilmalämpöpumppu ilmastointiin 2014 Päiväkotitiloihin koneellinen tulo/poistoilmanvaihto 2014 Käyttövesiputkistojen uusiminen, vesimittarit 2011 Rakennusten tikkaat uusittiin (turvakiskot ja valjasvyö ja nousuvaunu) 2010 Julkisivujen maalaus, sisääntulokatosten rakentaminen 2009 Pihan asfaltointi 2008 Salaojien uusiminen sekä patolevyjen asentaminen, B-talo 2007 A-talon hulevesien johtaminen kaupungin hulevesiviemäriin, pumppukaivo 2007 Salaojien uusiminen sekä patolevyjen asentaminen, A-talo 2006 Tiilipäätyjen korjaus (rappaus ja maalaus) 2005 Porraskäytävien ulko-ovien uusiminen 2003 Ikkunat ja parvekeovet uusittu 2001 Varastojen puuovet uusittu 2000 Kaukolämmönvaihdin uusittu 2000 Hissit peruskorjattu 1999 Lämmitysverkoston tasapainotus ja säätö, vaihdettu patteri- ja linjasäätövent. |
| Tulevat remontit: | Selvitys korjaustarpeesta vuosille 2025 2029 - Palovaroittimien uusiminen 2025 - Portaiden rakentaminen Ylisentien jalkakäytävän reunasta A-rapun edustalle 2025 - salaojien huuhtelu ja kuvaus - hissien oskilaattoreiden ja paikannuslaitteiden asennus - sähkö-, antenni- ja datakaapelointien uusiminen/lisäys, kustannusarvio noin 575 000 € (2023 hinta-arvio) - huoneistojen ovien uusiminen - parvekerakenteiden ja parvekekaiteiden tarpeen mukaista kunnostamista ja huoltomaalaus - Kaukolämmön siirtimen uusiminen v. 2026 - Lämmityksen perussäätiö sisältäen patteriventtiilien uusiminen v. 2026 - Ilmanvaihtokanavien nuohous v. 2027 |
| Energialuokka: | D2018 |
Sijainti
