Tuotantotila, Kouvola, Korjala, Reijulankatu 6
- 612.0 m2Asunnon pinta-ala
- 2000Käyttöönottovuosi
- 5 400 € / kkVuokra
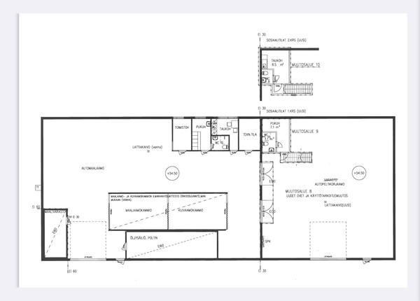
Hyväkuntoinen noin 600 m2 lämmin hallirakennus, jossa toiminut automaalaamo ja autopeltikorjaamo. Halli jaettu kahteen osaan, molemmilla puolilla sähköiset nosto-ovet ja sisäpuolella tilojen välissä kulkuovi. Molemmilla puolilla pienet toimisto- ja sosiaalitilat. Asfaltoitu piha-alue ja parkkipaikkoja.
Vuokra 5400 euroa(sis alv) / kuukausi + sähkö + vesi.
Perustiedot
| Kohdenumero: | 20674295 |
| Sijainti: |
|
| Tyyppi: | Tuotantotila |
| Huoneistoselitelmä: | 2 osainen halli väliovella, toimistoparvi |
| Huoneita: | Ei luokiteltu |
| Asuinpinta-ala: | 612 m2 |
| Lisätietoja pinta-alasta: |
|
| Kerrokset: | 1 |
| Rakennusvuosi: | 2000 |
| Vapautuminen: | Alkaen 01.12.2025 |
Maksut
| Myyntihinta: | 0 € |
| Kiinteistövero: | 0 € / vuosi |
| Vuokra: | 5 400 € / kk |
| Lisätietoja maksuista: |
|
Tilat ja materiaalit
| Rakennus- ja pintamateriaalit: |
|
| Katto: |
|
| Keittiön kuvaus: |
|
| WC-tilojen kuvaus: |
|
Pohjakuva
Lisätiedot
| Yleiskunto: | Hyvä |
| Tehdyt remontit: | Ilmalämpöpumppujen asennus |
| Energiatodistus: | Ei energiatodistusta |
| Lämmitysjärjestelmän kuvaus: | Sähkölämmitys, ilmalämpöpumppu |
| Vesihuollon kuvaus: | Kunnan |
| Viemäri: | Kunnan |
Tontti
| Tontin omistus: | Vuokrattu |
| Tontin vuokra: | 0 € / vuosi |
| Kiinteistötunnus: | 286-11-18-13 |
| Tontin tyyppi: | Tasamaatontti |
| Tontin koko: | 2 500 m2 |
| Tehokkuusluku: | 0.4 |
Muut tiedot
| Rantaviivaa: | 0 m |
Sijainti
