Kerrostalo, Kouvola, Keskusta, Tapiolankatu 44
- 31.0 m2Asunnon pinta-ala
- 1954Käyttöönottovuosi
- 32 000 €Velaton myyntihinta
Heti vapaa 3.kerroksen yksiö, Kouvolan Urheilupuiston läheisyydessä.
Tästä kiva yksiö vaikkapa sijoituskäyttöön, hyvä sijainti lähellä kouluja ja keskustaa. Laminaattilattiat, pesuhuoneessa laatoitukset. Keittiöön mahtuu ruokapöytä. Eteisessä kiintokomeroita.
Taloyhtiössä tehty 2000-luvulla mm. putkiremontti ja uusittu kylpyhuoneet sekä uusittu ikkunat.
Perustiedot
| Kohdenumero: | 21280456 |
| Sijainti: |
|
| Tyyppi: | Kerrostalo |
| Omistusmuoto: | Omistusasunto |
| Huoneistoselitelmä: | 1h + k + kph |
| Huoneita: | Yksiö |
| Asuinpinta-ala: | 31 m2 |
| Pinta-alan peruste: | Yhtiöjärjestyksen mukainen |
| Kerros: | 3/3 |
| Rakennusvuosi: | 1954 |
| Vapautuminen: | Heti |
Maksut
| Velaton hinta: |
|
| Myyntihinta: | 32 000 € |
| Velkaosuus: | 0 € |
| Neliöhinta: | 1 032,26 € / m2 |
| Vastike: |
|
| Lisätietoja maksuista: |
|
Tilat ja materiaalit
| Rakennus- ja pintamateriaalit: |
|
| Katto: |
|
| Keittiön kuvaus: |
|
| Kylpyhuoneen kuvaus: |
|
| Olohuoneen kuvaus: |
|
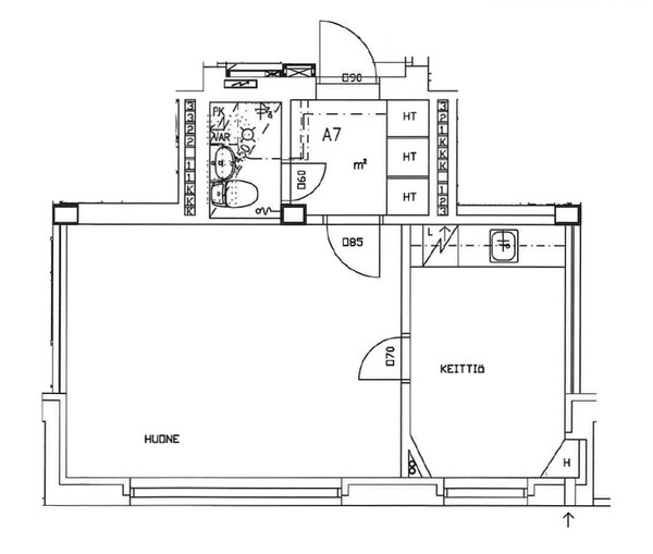
Pohjakuva
Lisätiedot
| Yleiskunto: | Hyvä |
| Lämmitysjärjestelmän kuvaus: | Kaukolämpö |
Muut tiedot
| Rantaviivaa: | 0 m |
Taloyhtiö
| Taloyhtiön nimi: | Asunto Oy Metsolankulma |
| Isännöitsijä: | Eskolanmäen Kiinteistöpalvelut Oy, Santeri Reijasalo |
| Huolto: | RTK-Palvelu Oy |
| Taloyhtiöön kuuluu: | Sauna, talopesula, vinttikomero, kellarikomero, urheiluvälinevarasto |
| Taloyhtiön autopaikat: |
|
| Liikehuoneistoja: | 1 |
| Tontin koko: | 1 676 m2 |
| Tontin omistus: | Oma |
| Tehdyt remontit: | 2023 Liikesiiven ikkunoiden levytys, 2021 Jätekatokseen asennettu valaisin, 2020 Liikesiiven sekä kellarin ilmanvaihdon uusiminen, 2019 Urheiluvälinevarastojen seinien ja ovien asennus, 2016 Antenniverkon mittaus ja antennikeskuksen asennus, 2014 Vesikaton asuinosan korjaus, 2013 Vesikaton osakorjaus, 2010 Asunto-osan linjasaneeraus ja kylpyhuoneiden saneeraus, 2009 Liikesiiven linjasaneeraus, 2004 Asuntojen ikkunoiden uusinta, porrashuoneiden ikkunoiden kunnostus, 2004 Huoneistojen parvekeovien, ulko-ovien ja lukituksen uusinta, 2004 Porrashuoneiden maalaus, 2004 Lämmönvaihtimen ja säätölaitteiden uusinta ja lämmityksen säätö, 2004 Antennin digitalisointi. |
| Tulevat remontit: | 2025 Palovaroittimet 10v 2025 IV-kanavien puhdistus ja säätö 2025 Parvekkeiden ja julkisivun kunnostuksen suunnittelu 2026 Parvekkeiden ja julkisivun kunnostus 2026 Sähköverkon kuntokartoitus 2026 Piharemontin suunnittelu |
| Energialuokka: | E2018 |
Sijainti
